
Modernus namo interjeras
Naujas, nedidelis kvartalas pušyne.
Pradėjau dirbti, kai name dar nebuvo vidinių pertvarų. Kartu su klientu jas suplanavome įvertindami patalpų paskirtis, šeimos poreikius ir vizijas. Paruoštas pertvarų planas, kad interjero kūrimo metu statybininkai jau galėtų statyti vidines sienas.
Pateikus pirmines vizualizacijas, kurios buvo paruoštos tiksliai pagal pirmines užsakovo idėjas, jos nepatiko. Todėl padaryti baldų dydžių, akcentų ir spalviniai pakeitimai.
Pagal pateiktus interjero pavyzdžius išpildytos visos namo erdvės atsižvelgiant į inžinerinių sistemų techninę informaciją.
Daug laiko skirta ieškant miegamojo galvūgalio ir svetainės TV sienų išpildymams. Pasirinkti vizualiai ir techniškai paprastesni variantai.
Projekto kūrimo eigoje, klientas paprašė parodyti, kaip atrodys didelė terasa, nors jos statyba planuojama ateityje.
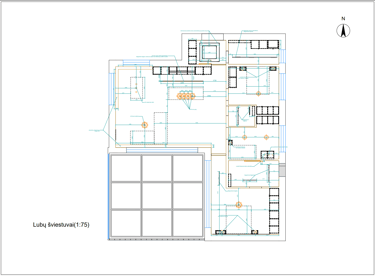
Užbaigus vizualinę dalį, paruošti elektros lizdų ir jungtukų planas, vandens taškų planas.
Po pokalbio su elektriku, pakoreguotas elektros planas.
Viso interjero projekto kūrimo terminas apie 30 dienų. Klientai buvo labai aktyvūs.
























Namo vizualizacijos
Namo planai
Vidaus petvarų planas; šviestuvų planas su baldų gabaritais; namo elektros lizdų ir jungtukų planas; namo vandens taškų planas; elektros lizdų ir jungtukų bei vandens taškų planai pagal patalpas; rekuperatoriaus ir katilo tiksli vieta patalpoje
























